Обяви За нас Контакти
Продава 2-СТАЕН
град Пловдив, Беломорски
73 100 €
142 971.17 лв.

(1 091 €, 2 133.81 лв./m2)
Цената е с включено ДДС
История на цената
Коригирана в 10:14 на 27 октомври, 2025 год.
Обявата е посетена 3 пъти.
Площ:
67 m2
Етаж:
3-ти от 4
Строителство:
Тухла, Не е въведен в експлоатация

Описание на имота:


Компания X представя на Вашето внимание двустаен апартамент в Беломорски.

МЕСТОПОЛОЖЕНИЕ: Беломорски е квартал на Пловдив, разположен в южната част на града. Той е един от по-новите и бързоразвиващи се жилищни райони, предлагащ комбинация от съвременна инфраструктура и удобства в близост до природата. Кварталът е добре свързан с останалата част на града чрез автобусни линии и основни пътища. В Беломорски се изграждат много нови жилищни комплекси и модерни сгради, които предлагат удобства. Жилищата в района са разнообразни, като се предлагат както апартаменти, така и къщи.

СТРОИТЕЛСТВО: Апартаментът се намира на 30-ти етаж в четириетажна сграда, ново строителство.

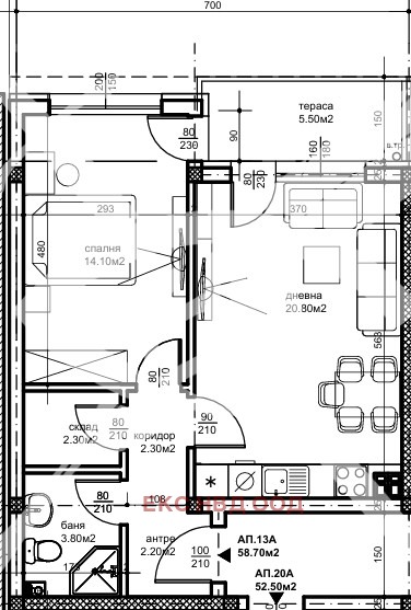
РАЗПРЕДЕЛЕНИЕ: Жилището разполага с площ от 67 кв.м. разпределена по следния начин: входно антре, коридор, дневна с трапезария и кухненски бокс, спалня, баня с тоалетна, склад и тераса.

Заповядайте да Ви го покажем. Използвайки нашите услуги Вие ще превърнете закупуването на новия си дом в едно приятно изживяване, ще получите персонален консултант, съдействие при кандидатстване за кредит от всички банки в България, интериорни дизайнери и екип, който да се погрижи за нужните документи по Вашата сделка. На Ваше разположение сме всеки ден, от понеделник до неделя от 09:00 до 20:00ч. Възползвайте се от безплатна консултация в наш офис, където ще ви спестим време и ще ви запознаем с всички актуални имоти в България, отговарящи на Вашето търсене. Свържете се с нас на 0887779990 или на 0884060990 и цитирайте кода към имота: 1155-33635
Особености
Тухла
За контакт:
0887779990
Агенция:
ЕКС НВД ООД
088777990
ЕКС НВД ООД logo
В imot.bg от 2023 г.
xnvd_plovdiv.imot.bg
Адрес:
област Пловдив, гр. Пловдив, бул. Мария Луиза 43 А
ИЗПРАТИ ЗАПИТВАНЕ
ИЗПРАТИ ЗАПИТВАНЕТО

Продава 2-СТАЕН
град Пловдив, Беломорски
Обява: 1b174963500935115

73 100 €
142 971.17 лв.
История на цената
(1 091 €, 2 133.81 лв./m2)

Цената е с включено ДДС
ЗАПАЗИ ОБЯВАТА

Местоположение: град Пловдив, Беломорски

Допълнителни данни за имотите в района и сравнение с други райони

Покажи

Период

и 2 месеца

* Средните цени са определени чрез медианна стойност